物件詳細
土地付建物(戸建・マンション)
土地面積1,000㎡以上!間取り7LDK+ランドリールームのファミリー層におすすめ物件です♫198㎡の車庫には車8台以上駐車可能です。ご不明点等ございましたらお気軽にお問い合わせください。
茂原市高師
販売価格
3,980
万円
-
所在地茂原市高師921-12
-
交通JR外房線『茂原』駅より約1000m(徒歩13分)
-
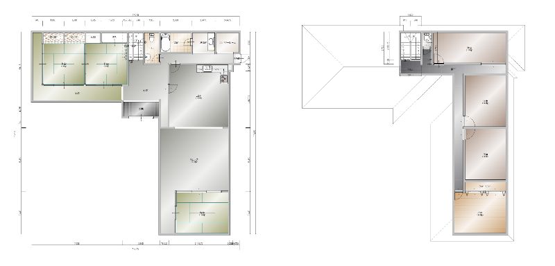
床面積1階163.00㎡ 2階84.22㎡ 延床面積247.22㎡(74.78坪)
-
間取り7LDK
-
築年月昭和56年12月
-
広告転載転載不可
区画図
現地案内図
物件概要
| 土地面積 | 1005.80㎡(304.25坪) | 土地権利 | 所有権 |
|---|---|---|---|
| 地目 | 宅地 | 構造・規模 | 木造かわらぶき2階建 |
| 都市計画 | 非線引き | 用途地域 | 一種住居 |
| 建ぺい率 | 60% | 容積率 | 200% |
| 法令上制限 | 景観法 | 地勢 | 平坦 |
| 引渡条件 | 現況有姿 | 駐車場 | 車庫有り |
| 現況 | 居住中 | 引渡日 | 相談 |
| 接道状況 | 南側:公道 42条2項 幅員3.0m 西側:公道 42条2項 幅員2.0~2.1 | 設備 | 公営水道・都市ガス・本下水 |
| 取引態様 | 専任媒介 |
【備考】
※建物状況調査を行う場合は買主負担となります
※契約不適合責任は免責となります
※現況有姿でのお引渡しとなります
※水害履歴無し
※図面と現況に相違が有る場合は、現況を優先とします
※成約時には仲介手数料とそれにかかる消費税を別途申し受けます
お問い合わせ
茂原市高師921-12
お問い合わせ
玉川工産は、お客様一人ひとりに寄り添い、最適なご提案を心がけております。
不動産に関するご相談やご質問など、どんなことでもぜひお聞かせください。