玉川工産ロゴ

物件詳細

土地付建物(戸建・マンション)

子育て世帯におすすめ!4SLDKファミリータイプ物件のご紹介です。
三井ホーム施行(2×4工法)
2023年屋根・外壁・門の塗装、他、1F2重サッシ・玄関ドア交換等有!
閑静な住宅街・南道路で陽当たり良好な物件です♫
ご不明点等ございましたらお気軽にお問い合わせください。

【成約済】
茂原市中部
  • 所在地
    茂原市中部16-3
  • 交通
    JR外房線『茂原』駅より約2600m
  • 床面積
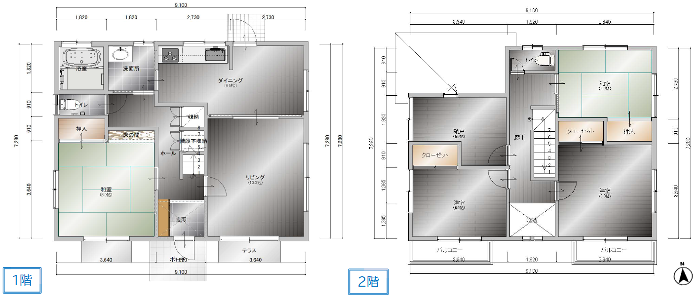
    1階66.24㎡ 2階57.12㎡ 延床面積123.36㎡(37.31坪)
  • 間取り
    4SLDK
  • 築年月
    平成3年7月
  • 広告転載
    転載不可

区画図

現地案内図

物件概要

土地面積 206.51㎡(62.46坪) 構造・規模 木造ストレート葺2階建
土地権利 所有権 地目 宅地
都市計画 非線引き 用途地域 一種低層
建ぺい率 50% 容積率 100%
法令上制限 景観法 地勢 平坦
引渡条件 現況有姿 駐車場 有(2台可)
現況 空家 引渡日 相談
接道状況 南側:公道 42条1項1号 幅員6.0m 設備 公営水道・都市ガス・本下水
取引態様 専任媒介
【備考】

※建物状況調査を行う場合は買主負担となります
※契約不適合責任は免責とします
※水害履歴無し
※図面と現況に相違が有る場合は、現況を優先とします
※成約時には仲介手数料とそれにかかる消費税を別途申し受けます

担当支店
茂原本社
〒297-0024
千葉県茂原市八千代3-12-6
TEL:0475-22-5118 FAX:0475-24-7581
問い合わせ

                      【成約済】

    お名前
    必須
    フリガナ
    必須
    メールアドレス
    必須
    郵便番号
    ご住所
    お電話番号
    必須
    ご相談内容

    問い合わせ

    玉川工産は、お客様一人ひとりに寄り添い、最適なご提案を心がけております。
    不動産に関するご相談やご質問など、どんなことでもぜひお聞かせください。