玉川工産ロゴ

物件詳細

賃貸物件(テナント・住居・貸地)

茂原街道沿いのテナント募集物件です!ロードサイド沿いで視認性◎約6台駐車可能な駐車場付き!ご不明な点等ございましたらお気軽にお問い合わせください。

茂原市長谷 伊東ビル1階
月額
22
万円
  • 所在地
    茂原市長谷1111
  • 交通
    JR外房線「茂原」駅より約2600m
  • 面積
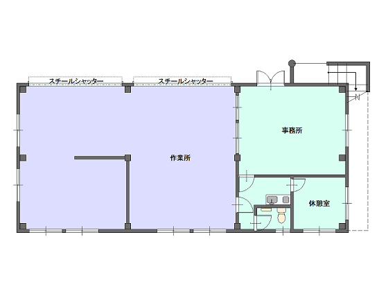
    121.77㎡(36.83坪)
  • 賃貸条件
    敷金5ヶ月(相談) 礼金1ヶ月
  • 広告転載
    転載不可

区画図

現地案内図

物件概要

構造・規模 鉄骨造亜鉛メッキ鋼板葺2階建 築年月 平成7年9月
都市計画 非線引き 用途地域 無指定
法令上制限 景観法 引渡条件 相談
引渡日 相談 現況 賃貸中
管理費 無(共用部精算有) 家財保険 加入要
保証会社 全保連他 契約期間 10年(相談可)
契約形態 定期借家(相談可) 駐車場 有(敷地内約6台) ※近隣駐車場有
設備 公営水道・プロパンガス・合併浄化槽 取引態様 媒介
【備考】

・現況有姿でのお引渡しとなります。・営業に伴う許認可等は借主負担となります。・改装工事等については、借主負担となります。・その他詳細事項は別途相談・水害履歴有り※図面と現況に相違がある場合は、現況を優先します。成約時に、仲介手数料(1ヶ月分)とそれにかかる消費税を別途申し受けます。

担当支店
茂原本社
〒297-0024
千葉県茂原市八千代3-12-6
TEL:0475-22-5118 FAX:0475-24-7581
問い合わせ

茂原市長谷1111伊東ビル1階

    お名前
    必須
    フリガナ
    必須
    メールアドレス
    必須
    郵便番号
    ご住所
    お電話番号
    必須
    ご相談内容

    問い合わせ

    玉川工産は、お客様一人ひとりに寄り添い、最適なご提案を心がけております。
    不動産に関するご相談やご質問など、どんなことでもぜひお聞かせください。