玉川工産ロゴ

物件詳細

賃貸物件(テナント・住居・貸地)

JR外房線「茂原」駅より2.1kmにございます敷地約740坪の貸店舗・事務所です♫敷地内には16台以上駐車可能です。お客様や従業員に嬉しい屋根付き駐車場もございます♪床面積は1階42坪、2階20坪と広々とした建物で、店舗部分はログハウスになっております!ご不明点等ございましたらお気軽にお問い合わせください。

茂原市早野
月額
50
万円
  • 所在地
    茂原市早野1071-1
  • 交通
    JR外房線「茂原」駅より約2100m
  • 敷地面積
    約2447㎡(約740坪)
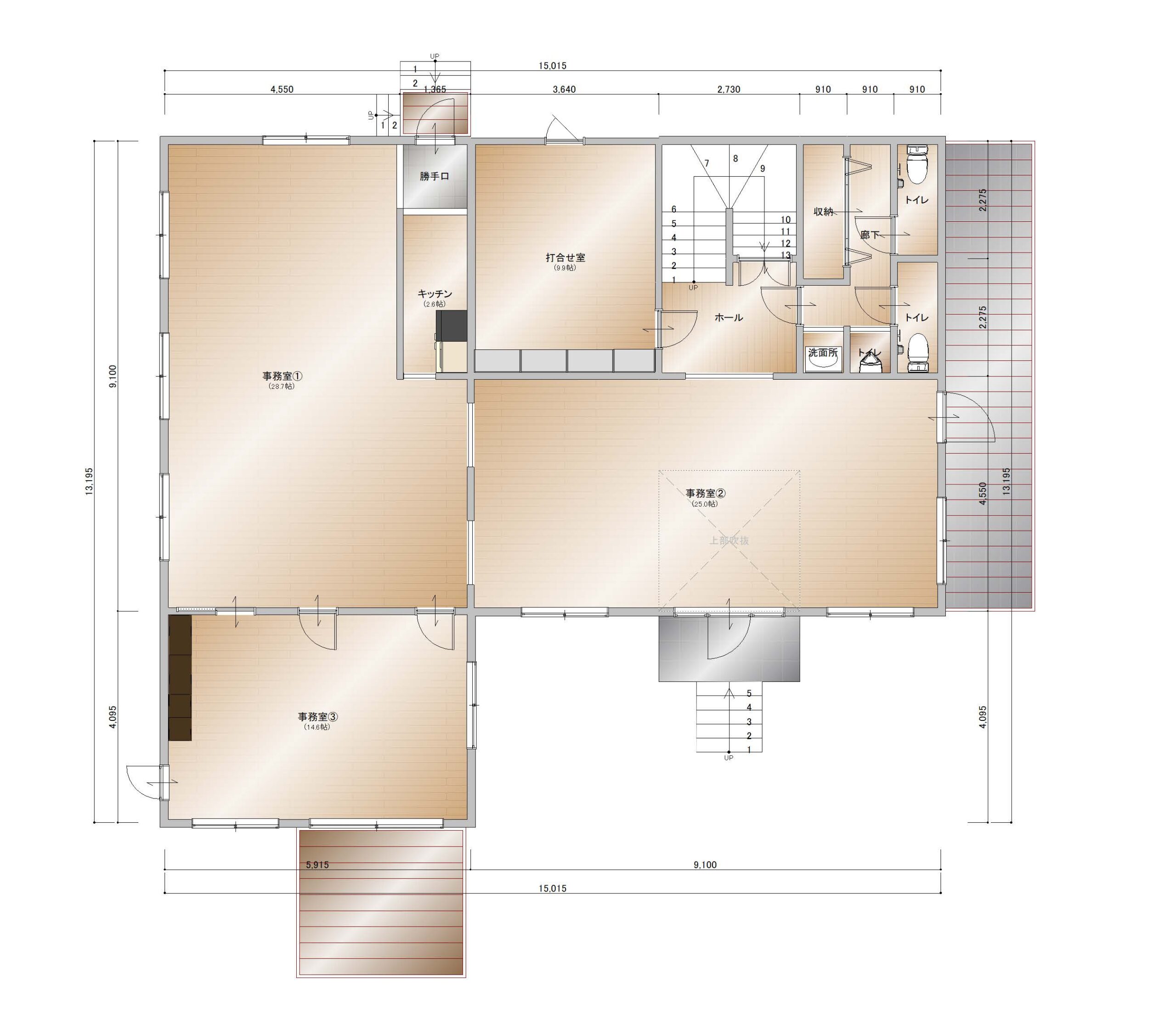
  • 床面積
    1階138.96㎡ 2階68.85㎡ 延床面積207.81㎡(62.86坪)
  • 賃貸条件
    敷金6ヶ月(ご相談)
  • 広告転載
    転載不可

区画図

現地案内図

物件概要

構造・規模 木造ストレート葺2階建 築年月 平成1年10月
都市計画 非線引き 用途地域 無指定
法令上制限 景観法・計画道路 現況 空き
引渡条件 現況有姿 引渡日 相談
契約期間 相談 契約形態 定期借家
設備 公営水道・プロパンガス、単独浄化槽 駐車場 有(正面3台・裏側13台)
取引態様 貸主
【備考】

※営業に伴う許認可等は借主負担となります。
※改装工事等については借主負担となります。
※その他詳細事項は別途ご相談となります。
※図面と現況に相違がある場合は、現況を優先します。

担当支店
茂原本社
〒297-0024
千葉県茂原市八千代3-12-6
TEL:0475-22-5118 FAX:0475-24-7581
問い合わせ

茂原市早野1071-1

    お名前
    必須
    フリガナ
    必須
    メールアドレス
    必須
    郵便番号
    ご住所
    お電話番号
    必須
    ご相談内容

    問い合わせ

    玉川工産は、お客様一人ひとりに寄り添い、最適なご提案を心がけております。
    不動産に関するご相談やご質問など、どんなことでもぜひお聞かせください。