玉川工産ロゴ

物件詳細

賃貸物件(テナント・住居・貸地)

JR外房線「上総一ノ宮」駅より290m(徒歩4分)、近隣にはドラッグストアやコンビニ、一宮町役場が徒歩圏内にあり人で賑わう立地です♪当物件はアスファルト敷きの駐車場付(4台分)の物件です!ご不明点等ございましたらお気軽にお問い合わせください。

長生郡一宮町一宮
月額
15
万円
  • 所在地
    長生郡一宮町一宮2553-3の一部
  • 交通
    JR外房線「上総一ノ宮」駅より290m(徒歩4分)
  • 面積
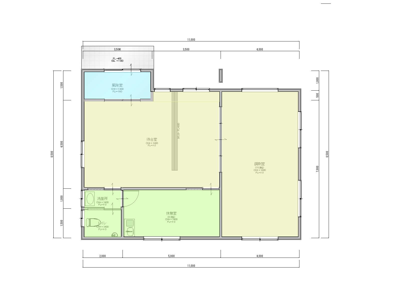
    89.50㎡(27.07坪)
  • 賃貸条件
    敷金2ヶ月 礼金1ヶ月
  • 広告転載
    転載不可

区画図

現地案内図

物件概要

構造・規模 木造亜鉛メッキ鋼板葺平屋建 築年月 平成15年8月
都市計画 非線引き 用途地域 一種住居
法令上制限 建築基準法第22条・第23条 現況 空き
引渡条件 現況有姿 引渡日 相談
設備 公営水道・個別プロパン・合併浄化槽 駐車場 4台有(無料)
契約期間 10年(相談可) 取引態様 媒介
【備考】

※営業に伴う許認可等は借主負担となります。
※改装工事等については借主負担となります。
※その他詳細事項は別途ご相談となります。
※図面と現況に相違がある場合は、現況を優先とします。
※成約時に、仲介手数料(1ヶ月分)とそれにかかる消費税を別途申し受けます。

担当支店
茂原本社
〒297-0024
千葉県茂原市八千代3-12-6
TEL:0475-22-5118 FAX:0475-24-7581
問い合わせ

長生郡一宮町一宮2553-3の一部

    お名前
    必須
    フリガナ
    必須
    メールアドレス
    必須
    郵便番号
    ご住所
    お電話番号
    必須
    ご相談内容

    問い合わせ

    玉川工産は、お客様一人ひとりに寄り添い、最適なご提案を心がけております。
    不動産に関するご相談やご質問など、どんなことでもぜひお聞かせください。